Obras de Águas Lindas também foram iniciadas e devem ser finalizadas até outubro de 2020
Publicado: 08/07/2020 - Fonte: Assessoria de Imprensa
A inspetoria de Águas Lindas está em fase de fundação e deve ser entregue em outubro
O Crea-GO firmou protocolo de intenções visando à futura locação de imóveis comerciais construídos pelo sistema de locação sob medida, também conhecido por “built to suit”, para sediar as novas inspetorias de Cristalina, Luziânia e Águas Lindas.
As novas inspetorias estão sendo construídas no modelo padrão da Casa da Engenharia, instituído pelo Conselho em 2015. Por meio da parceria público-privada, o Crea-GO não utiliza recursos próprios para a construção dos imóveis.
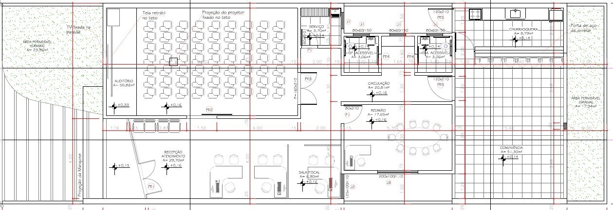
As três inspetorias passarão a contar com instalações mais amplas, melhorando o conforto dos profissionais goianos e da sociedade em geral. Em cada uma delas, também será construído um auditório com capacidade para 60 pessoas, que, após a pandemia, possibilitará a realização de palestras, cursos e outras atividades, de acordo com a necessidade local. Haverá, ainda, uma sala de reuniões e uma área de convivência.
As obras estão em andamento e, depois de finalizadas, cada inspetoria terá aproximadamente 220 metros quadrados de área construída cada. A nova sede da inspetoria de Cristalina já está com as estruturas, cobertura e alvenarias prontas. A de Luziânia, com as estruturas e alvenarias já finalizadas. Já a inspetoria de Águas Lindas ainda está em fase de fundação.
As obras de Cristalina e Luziânia, mais adiantadas, têm previsão de entrega para o próximo mês de agosto. Já a inspetoria de Águas Lindas, que foi iniciada recentemente, deve ser entregue até outubro deste ano. Mesmo com a pandemia, as construções devem seguir normalmente, considerando que configuram obras de interesse social.
O projeto Casa da Engenharia visa estabelecer uma nova padronização para as atividades do Crea-GO. A proposta permite que a Autarquia seja facilmente reconhecida pela comunidade, que a identidade do Conselho seja fortalecida nos municípios e que a Casa da Engenharia se torne um espaço de integração entre a comunidade tecnológica e a população local.
Com o projeto, o Crea cria ambientes – com auditório e área de convivência devidamente preparados –, que ficam à disposição das comunidades municipais e onde podem ser realizadas discussões e apresentadas soluções para o desenvolvimento sustentável das cidades.
“Considerando que todos os serviços do Crea podem ser prestados virtualmente, as inspetorias, no novo formato, têm suas instalações a serviço da sociedade e dos profissionais das cidades, para que realizem reuniões, cursos e eventos de interesse dos municípios”, destaca o presidente do Crea-GO, Eng. Francisco Almeida.
A planta baixa das novas inspetorias, que terão aproximadamente 220 m² de área construída
A obra de Cristalina já está com as estruturas, cobertura e alvenarias prontas
Em Luziânia, as estruturas e alvenarias da obra já estão finalizadas
A inspetoria de Águas Lindas está em fase de fundação e deve ser entregue em outubro
Notícias
Eleições do Sistema Confea/Crea e Mútua: Comissão Eleitoral Federal define regras e prazo para desincompatibilização Confea lança Agenda Legislativa Prioritária 2026 na Câmara dos Deputados Crea-GO realiza Encontro Profissional para Atualização, Normas Vigentes e ART, em Uruaçu Sessão Solene na Alego homenageia engenheiras e exalta atuação de profissionais do Crea-GO Crea-GO prioriza governança, investimentos em tecnologia e valorização da classe na 916ª Sessão Plenária